Sold STC £85,000


Full Property Description

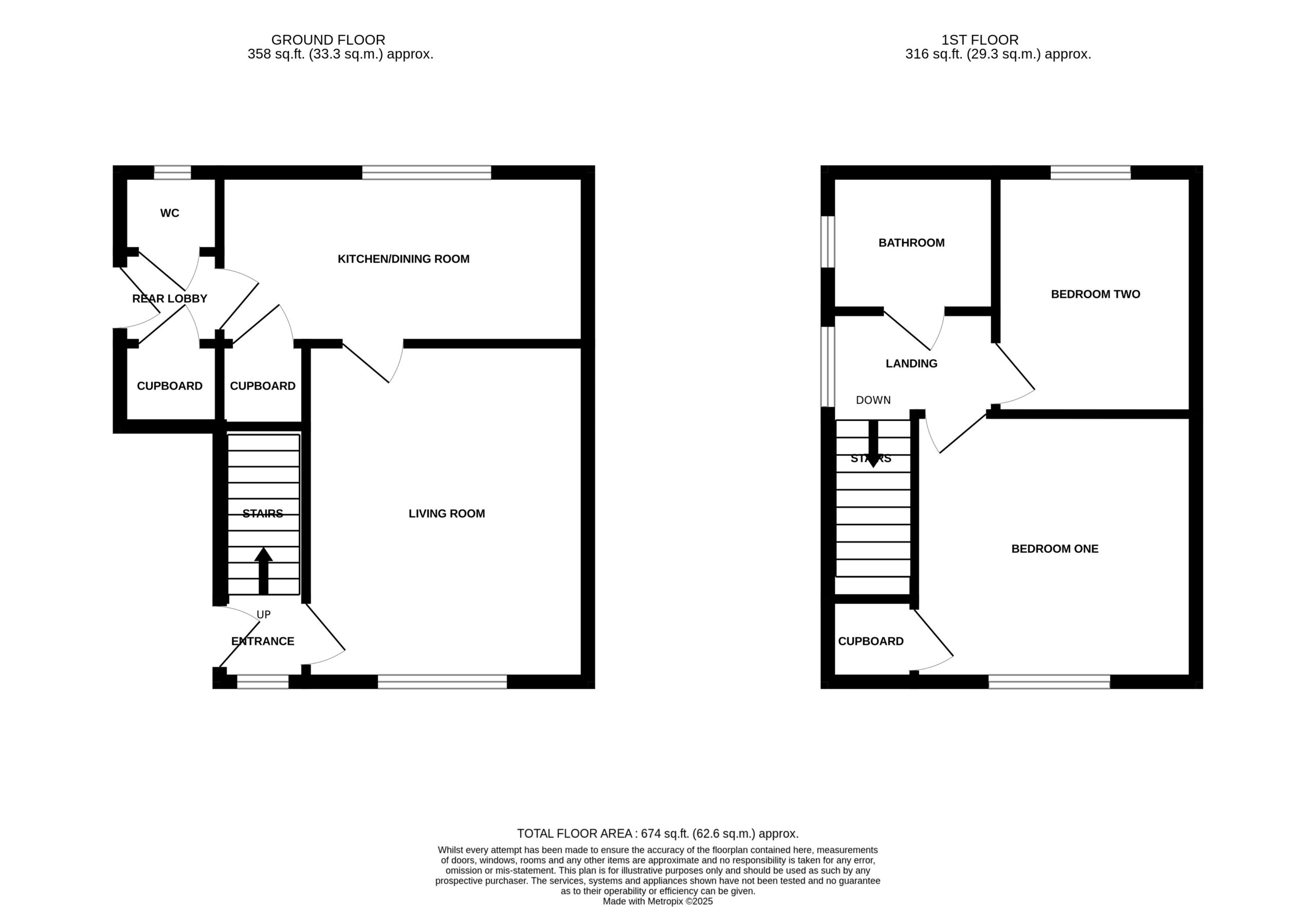
COUNCIL TAX BAND - A EPC RATING - D TENURE - FREEHOLD Ben Charles Ltd are delighted to offer this well presented, two bedroom house to the sales market. The accommodation briefly comprises: On the ground floor; Entrance, living room, breakfasting kitchen, rear lobby and cloakroom / wc. To the first floor are two well proportioned bedrooms and a family bathroom. Externally there is a sizeable garden to the rear with open countryside views and a garden with off street parking provision to the front. Kelloe is situated within a few minutes’ drive of Coxhoe where there are a good range of everyday shops and amenities available, with more comprehensive shopping and recreational facilities and amenities available within Durham City Centre. It is also conveniently located for commuting purposes being close to the A(177) Highway which offers access to Sedgefield, Teesside and Durham, as well as the A1(M) Motorway Interchange at Bowburn. Early viewing is recommended.

Entrance Entrance door, double glazed window, radiator and staircase to first floor.

Living Room 4.24m x 3.53m Double glazed window and radiator.

Breakfast Kitchen 4.60m x 2.11m Fitted wall and base units, coordinated work surfaces with single drainer sink unit, electric cooker point, space for washing machine, storage cupboard, part tiled walls, radiator and double glazed window.

Rear Lobby Rear door, storage cupboard and radiator.

Cloakroom / WC Double glazed window, low level wc, wash hand basin and radiator.

Landing Double glazed window and radiator.

Bedroom One 3.53m x 3.40m Double glazed window, cupboard housing boiler and radiator.

Bedroom Two 3.02m x 2.49m Double glazed window and radiator.

Family Bathroom White three piece suite comprising panelled bath with shower over, vanity unit housing wash hand basin, low level wc, tiled walls, tiled floor, heated towel rail and double glazed window.

Rear Garden Laid mainly to lawn with hedge and fenced boundaries, patio area and open countryside views.

Front Garden Lawned area, block paved driveway, walled boundaries.


Property Information

  • Ref: DUR250015
  • Type: Semi-Detached House
  • Availability: Sold (STC)
  • Bedrooms: 2
  • Bathrooms: 1
  • Reception Rooms: 1
  • Parking: Off Road Parking
  • Tenure: Freehold