Sold STC £120,000
Full Property Description
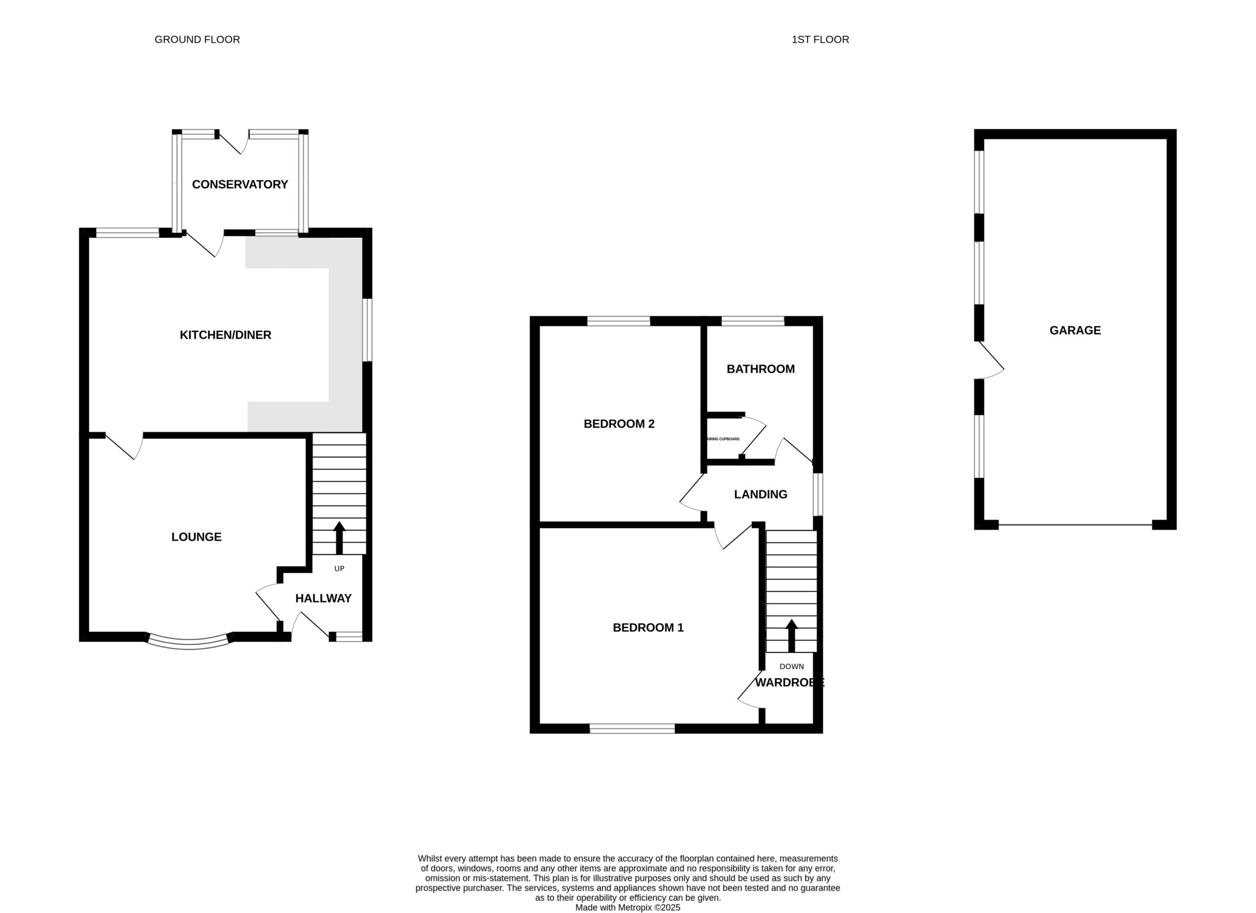
Ideally suited to a variety of buyers, this well-maintained home is conveniently positioned on this popular street. The property has the benefit of uPVC double glazing and a gas-fired boiler and offers accommodation comprising, on the ground floor, an entrance hallway, living room, dining kitchen and conservatory. On the first floor are two double bedrooms and a bathroom. Externally there are gardens to the front and rear, driveway providing off street parking and detached garage. The Avenue is handily placed for access to everyday shops, etc., within the village. More comprehensive shopping and recreational facilities and amenities are available within Durham City, Durham City Retail Park at Gilesgate, and nearby Sedgefield. It is also just off the A(177) Highway, which provides good road links to Durham City, Teesside and the A1(M) Motorway Interchange at Bowburn.Entrance Hallway Double glazed entrance door, double glazed window to front and staircase to first floor.
Living Room 3.63m x 4.03m Double glazed Bay window to front, fireplace with gas fire, radiator and television point.
Dining Kitchen 3.61m x 5.08m Fitted wall and base units with coordinating work surfaces, single drainer sink unit, integrated electric oven, integrated gas hob, extractor hood, space for washing machine, radiator, double glazed windows to rear and side and double glazed door to rear.
Conservatory 1.83m x 2.46m Double glazed windows to rear and side and double glazed French doors leading to rear garden.
First Floor Landing Double glazed window to side and radiator.
Master Bedroom 3.65m x 4.00m Double glazed window to front, fitted wardrobes and radiator.
Bedroom Two 3.59m x 3.01m Double glazed window to rear and radiator.
Bathroom 2.53m x 1.93m White three piece suite comprising panelled bath with shower over, pedestal wash hand basin, low level WC, tiled walls, heated towel rail, double glazed window to rear and storage cupboard.
Front Garden Mainly paved, with driveway providing off street parking and walled and paved boundaries.
Rear Garden Planted borders, wooden shed and fenced boundaries.
Garage 7.17m x 3.45m Wooden front doors, light and power points.
EPC Rating C
Council Tax Band B
Property Information
- Ref: DUR250134
- Type: Semi-Detached House
- Availability: Sold (STC)
- Bedrooms: 2
- Bathrooms: 1
- Reception Rooms: 1
- Tenure: Freehold

