Asking Price £428,000
Full Property Description
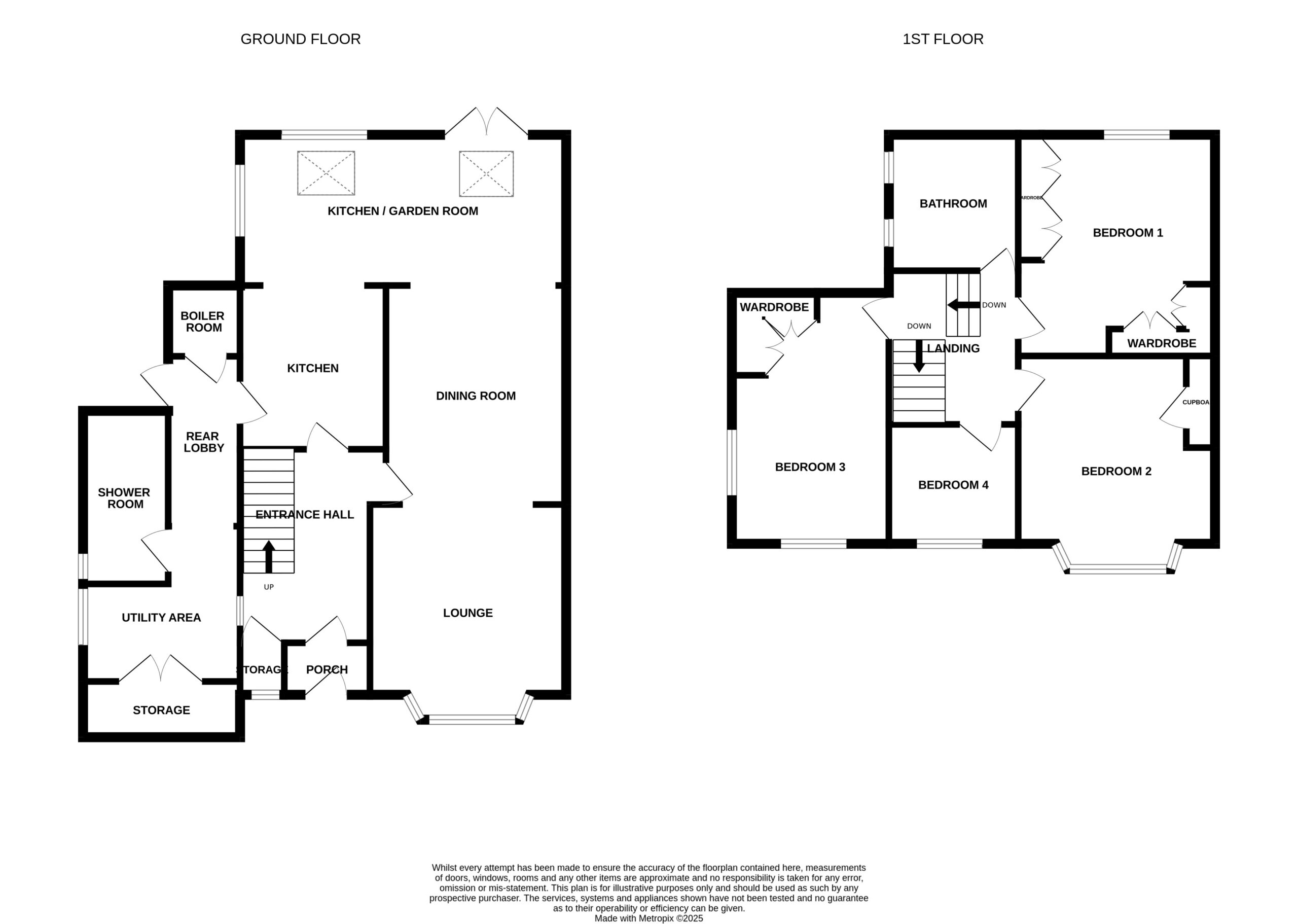
Rarely does the opportunity arise to purchase such a substantial and attractive, extended, four bedroomed semi detached property with gas fired central heating, double glazing and garage. Having been carefully extended and improved, the corner plot property offers a sizeable floor plan which briefly comprises to the ground floor: Entrance porch, entrance hallway, living room with bay window looking over the front garden and opening to dining room, garden room and L-shaped kitchen enjoying views over the rear garden. From the kitchen there is access to the lobby, downstairs shower room and utility room with ample storage. To the first floor there are four bedrooms and a family bathroom. Externally there are attractive gardens to the front, side and rear with lawns and planted borders. There are also two driveways providing ample parking and a detached single garage. St Monica Grove is a popular and well established residential area situated on the outskirts of the City Centre where there are comprehensive shopping and recreational facilities and amenities available. It is situated just off the A167 Highway which provides good road links to both North and South and within walking distance of the Durham Johnston School as well as having easy access to infant and junior schools in Nevilles Cross.Entrance Porch 0.87m x 1.27m Double glazed door to front.
Entrance Hall Entrance door, double glazed window to side, radiator and staircase to first floor.
Shower Room Double glazed window to side, low level WC, wash hand basin in vanity unit, extractor fan, radiator, step in shower and tiled walls.
Living Room 3.85m x 3.54m Double glazed Bay window to front, fireplace with electric fire, fitted storage and radiator.
Dining Room 3.94m x 3.24m Open from living room with radiator and fitted storage.
Kitchen/Garden Room 5.82m (max) x 5.22m (max) L-shaped extension comprising fitted base units with coordinating work surfaces, sink unit, integrated electric oven, integrated electric hob, extractor hood, partially tiled walls, island with breakfast bar, double glazed windows to side and rear, two Velux windows, radiator, double glazed door to side and double glazed French doors leading to rear garden.
Utility Room 1.71m x 2.75m Fitted wall and base units with coordinating work surfaces, sink unit, space for washing machine, double glazed window to side, partially tiled walls and double doors to storage area.
Rear Lobby 1.14m x 1.22m Double glazed door to side, storage cupboard, door to kitchen and opening to utility room.
Landing Access to roof space via ladder.
Master Bedroom 3.94m x 3.65m Double glazed window to rear, fitted wardrobes and radiator.
Bedroom Two 4.09m x 3.66m (max) Double glazed Bay window to front, radiator and storage cupboard.
Bedroom Three 4.61m x 2.77m Double glazed windows to front and side, fitted wardrobes and radiator.
Bedroom Four 2.12m x 2.30m Double glazed window to front.
Bathroom 2.44m x 2.27m Immaculately presented white four piece suite comprising panelled bath, pedestal wash hand basin, step in shower cubicle, low level WC, tiled walls, heated towel rail, two double glazed windows to side and extractor fan.
Front Garden Laid to lawn with gravelled seating area, hedged and walled boundaries and two driveways.
Rear Garden Laid mainly to lawn with planted borders, paved patio, fenced boundaries and gated access.
Detached Garage 4.57m x 2.54m Light and power points, remote controlled door and door to rear.
Council Tax Band C
EPC Rating C
Property Information
- Ref: DUR250244
- Type: Semi-Detached House
- Availability: For Sale
- Bedrooms: 4
- Bathrooms: 2
- Reception Rooms: 2
- Tenure: Freehold









































