Offers Over £210,000
Full Property Description
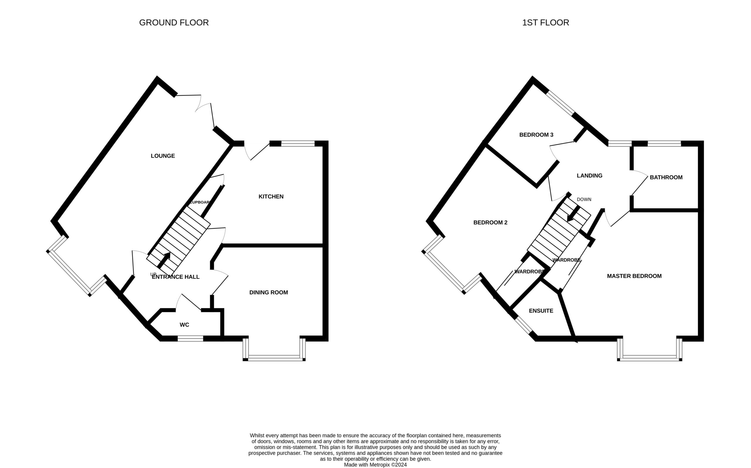
This immaculately presented and beautifully situated three bedroom detached family home is superbly positioned on the highly desirable and newly constructed Burdon Green development which provides semi-rural living in the excellent village of Coxhoe while being perfectly located close to Durham City and the A1(M). Popular with professionals, commuters and families alike, the stunning home has a lovely amount of accommodation with a floor plan that briefly comprises to the ground floor: Entrance hallway, spacious living room, inner hallway, cloakroom/WC and a stylish kitchen and separate dining room. To the first floor there is a landing providing access to the three bedrooms (main double bedroom with en-suite shower room) and a modern family bathroom. Externally the house sits near the edge of the development on a spacious plot with a pleasant lawn frontage, a driveway and single garage to the side of the house providing off street parking whilst to the rear there is a fully enclosed and private rear garden with a lawn area and a superb patio making this idea for families, entertaining and alfresco dining. Viewings are highly recommended to fully appreciate this wonderful home.Entrance Hallway Double glazed entrance door and staircase to first floor.
Cloakroom/WC 0.84m x 1.93m Double glazed window to front, low level WC, wash hand basin and radiator.
Living Room 5.89m x 3.31m Double glazed window to front, fireplace with electric fire, television point and double glazed French doors leading to rear garden.
Dining Room 2.77m x 3.40m Double glazed window to front and radiator.
Kitchen 3.10m x 4.09m Fitted wall and base units with coordinating work surfaces, sink unit, integrated electric oven, integrated gas hob, extractor hood, integrated fridge freezer, integrated dishwasher, space for washing machine, radiator, double glazed window to rear, double glazed door to rear and storage cupboard.
First Floor Landing Double glazed window to rear and radiator.
Master Bedroom 3.79m x 4.68m Double glazed window to front, fitted wardrobes and radiator.
En-Suite Shower Room 1.90m x 2.11m Three piece suite comprising pedestal wash hand basin, step in shower cubicle, low level WC, partially tiled walls, double glazed window to front, extractor fan and radiator.
Bedroom Two 4.61m (max) x 3.38m Double glazed window to front, fitted wardrobes, radiator and storage cupboard.
Bedroom Three 2.49m x 2.36m Double glazed window to rear and radiator.
Bathroom 1.97m x 2.04m White three piece suite comprising panelled bath with shower over, pedestal wash hand basin, low level WC, partially tiled walls, double glazed window to rear, extractor fan and radiator.
Front Garden Laid to lawn.
Rear Garden Laid to lawn with patio area, fenced boundaries and gated access.
Garage Light and power points, up and over door.
Council Tax Band D
EPC Rating C
Agent Notes Council Tax: Durham County Council, Band C Tenure: Freehold, confirmation of this should be confirmed by your legal representative. Estate Management Charge – Confirmation of this should be confirmed by your legal representative. Property Construction – Standard Gas Supply - Mains Electricity supply – Mains Water Supply – Mains Sewerage – Mains Heating – Gas Central Heating Estimated Mobile phone coverage – Please refer to the Ofcom Website Estimated Broadband Download speeds – Please refer to the Ofcom Website Building Safety – The Vendor is not aware of any Building Safety issues. However, we would recommend that the purchaser engages the services of a chartered surveyor to confirm. Restrictions – Covenants which affect the property are within the Land Registry Title Register which is available for inspection. Selective licencing area – No.
Agents Notes Cont. Rights & Easements – None known Flood risk – Refer to the Gov website Coastal Erosion – Refer to the Gov website Protected Trees – None known Planning Permission – Nothing in the local area to affect this property that we are aware of. Check with seller and solicitors. Accessibility/Adaptations – None known Mining Area – Coal Mining Reporting Area, further searches may be required by your legal representative.
Disclaimer Disclaimer: Our details have been compiled in good faith using publicly available sources and information obtained from the vendor prior to marketing. Verification and clarification of this information, along with any further details concerning Material Information parts A, B & C, should be sought from a legal representative or appropriate authorities before making any financial commitments. Ben Charles Ltd cannot accept liability for any information provided subsequent amendments or unintentional errors or omissions.
HMRC Compliance HMRC Compliance requires all estate agents to carry out identity checks on their customers, including buyers once their offer has been accepted. These checks must be completed for each purchaser who will become a legal owner of the property. An administration fee of £30 (inc. VAT) per individual purchaser applies for carrying out these checks.
Property Information
- Ref: DUR250261
- Type: Detached House
- Availability: For Sale
- Bedrooms: 3
- Bathrooms: 2
- Reception Rooms: 2
- Tenure: Freehold

































