Asking Price £114,950


Full Property Description

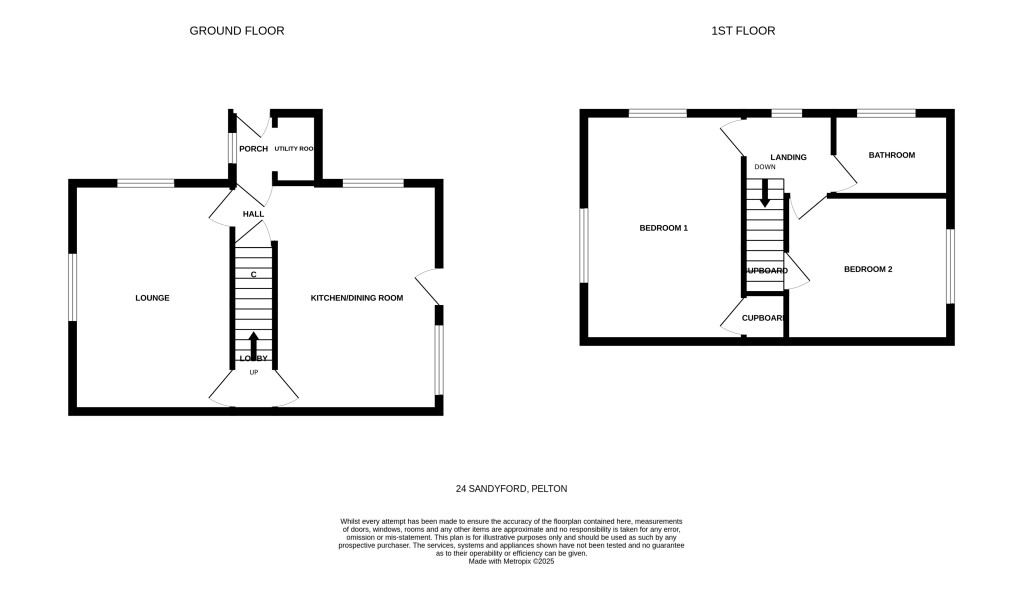
This two bedroom, semi detached home occupies a very favorable position, situated on the edge of a cul de sac. The beautifully presented home boasts gas central heating and double glazing throughout and briefly comprises to the ground floor: Entrance porch, entrance hallway, living room, dining kitchen and utility room. To the first floor are two bedrooms and a family bathroom. Externally are enclosed gardens to the front and side. Mossway is an established estate within Pelton Village with shops, schools and amenities within walking distance. The village is well served by public transport facilities and is a good base for commuting throughout the region via the A1(M) interchange in nearby Chester le Street.

Entrance Porch 0.82m x 1.24m Double glazed entrance door and double glazed window to side.

Entrance Hallway Storage cupboard and staircase to first floor.

Living Room 4.73m x 3.29m Double glazed windows to front and side, fireplace with wood burning stove, television point and radiator.

Dining Kitchen 4.70m x 3.41m Fitted wall and base units with coordinating work surfaces, single drainer sink unit, breakfast bar, integrated electric oven, integrated electric hob, extractor hood, integrated dishwasher, integrated microwave, integrated fridge freezer, radiator, double glazed window to front and double glazed door to side.

Utility Room 1.45m x 0.90m Fitted work surfaces and space for washing machine.

First Floor Landing Double glazed window to front.

Master Bedroom 4.72m x 3.34m Double glazed windows to front and side, radiator and storage cupboard.

Bedroom Two 2.97m x 3.51m Double glazed window to side, radiator and storage cupboard.

Bathroom 1.64m x 2.46m White three piece suite comprising panelled bath with shower over, low level WC and wash hand basin in vanity unit. heated towel rail. double glazed window to front and extractor fan.

Front & Side Gardens Laid to lawn with gravelled area, walled boundaries and gated access.

EPC Rating TBC

Council Tax Band A


Property Information

  • Ref: DUR250210
  • Type: Semi-Detached House
  • Availability: For Sale
  • Bedrooms: 2
  • Bathrooms: 1
  • Reception Rooms: 1
  • Tenure: Freehold