Asking Price £89,950
Full Property Description
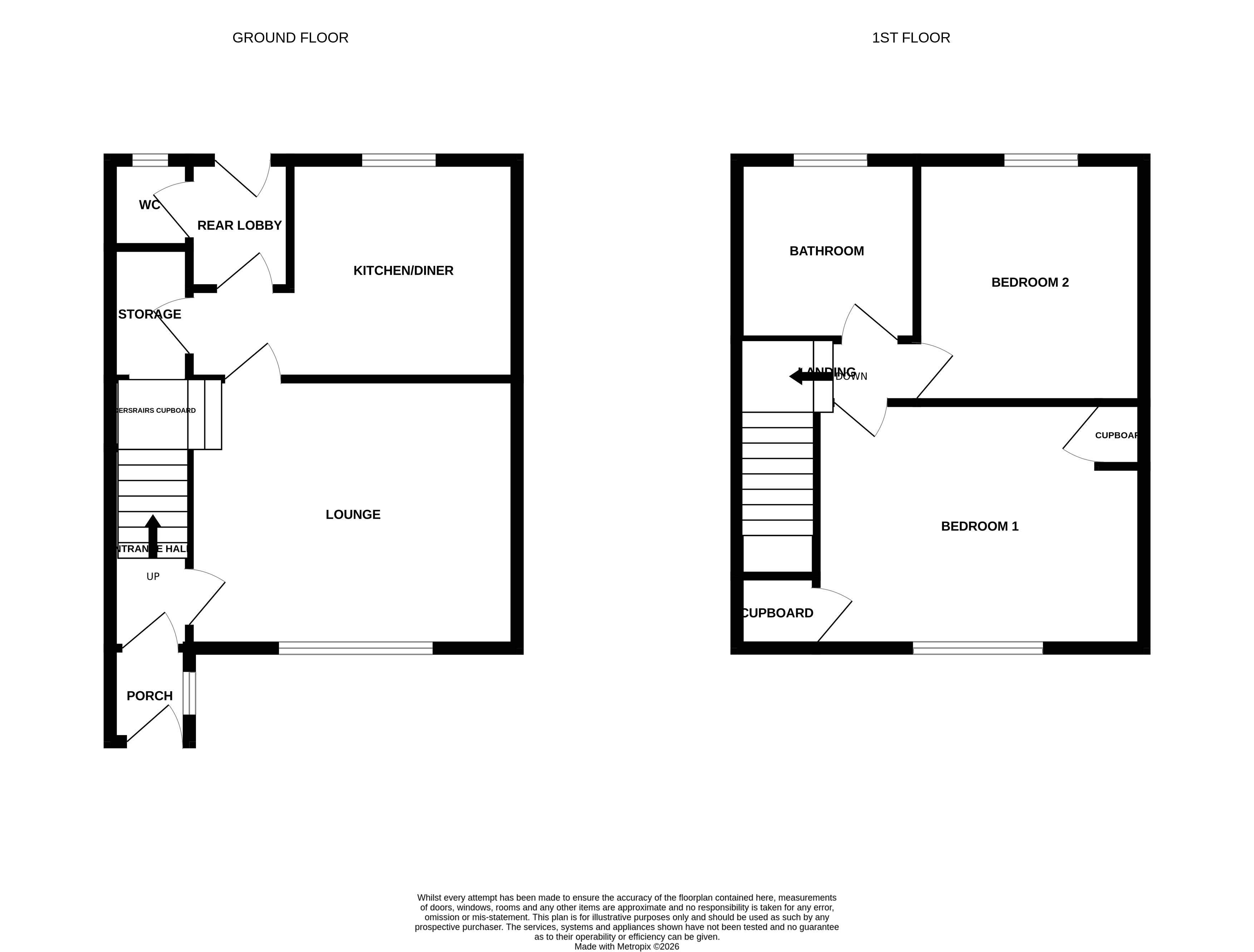
Boasting a large west facing rear garden on the outskirts of Coxhoe with open aspect to the rear and views over surrounding countryside, this terraced property must be viewed to appreciate the plot size on offer. Having gas fired central heating via back boiler and double glazing the realistically priced home briefly comprises to the ground floor: Entrance porch, entrance hallway, living room, dining kitchen, rear lobby and cloakroom/WC. To the first floor are two bedrooms and a family bathroom. Externally the property boasts gardens to the front and rear as well as a hardstand area providing off street parking. Lynn Park Crescent is situated on the outskirts of Coxhoe where there are a range of local shops and amenities available with a more comprehensive range of shopping and recreational facilities available within Durham City Centre which lies approximately 5 miles distant. Coxhoe is ideally placed for commuting purposes as it lies within easy driving distance of the A1(M) Motorway providing good road links to other regional centres.Entrance Porch 1.27m x 1.14m Double glazed door to front and double glazed window to side.
Entrance Hallway Double glazed entrance door, radiator and staircase to first floor.
Cloakroom/WC 1.18m x 1.35m Double glazed window to rear, WC, wash hand basin and radiator.
Living Room 3.67m x 4.57m Double glazed window to front, gas fire and radiator.
Dining Kitchen 2.99m x 4.17m Fitted wall and base units with coordinating work surfaces, sink unit, integrated electric oven, integrated gas hob, extractor hood, radiator, double glazed window to rear and storage cupboard leading to under stairs cupboard.
Rear Lobby Double glazed door to garden.
First Floor Landing Radiator and access to roof space.
Master Bedroom 3.25m x 4.63m Double glazed window to front, two storage cupboards and radiator.
Bedroom Two 3.43m x 3.09m Double glazed window to rear and radiator.
Bathroom 2.45m x 2.44m White four piece suite comprising panelled bath, pedestal wash hand basin, step in shower cubicle, low level WC, partially tiled walls, double glazed window to rear and radiator.
Front Garden Artificial lawn and driveway providing off street parking.
Rear Garden Artificial lawn area, planted borders, hedged and fenced boundaries.
EPC Rating E
Council Tax Band A
Property Information
- Ref: DUR250305
- Type: Terraced House
- Availability: For Sale
- Bedrooms: 2
- Bathrooms: 1
- Reception Rooms: 1
- Parking: Off Road Parking
- Tenure: Freehold



















