Sold STC £90,000
Full Property Description
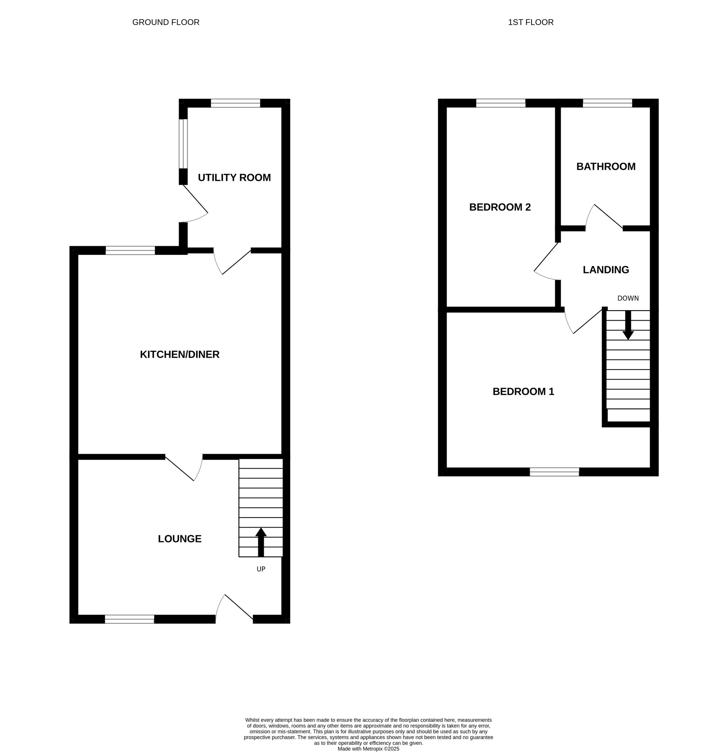
Ben Charles are delighted to offer this spacious, two bedroom, terraced cottage to the market. The accommodation briefly comprises: On the ground floor; Living room, dining kitchen and utility room. To the first floor are two well proportioned bedrooms and a bathroom. Externally there is a garden to the front and an enclosed yard to the rear. Logan Street is situated in the popular village of Langley Park. The area benefits from inclusion within the catchment areas of a number of well regarded schools and is serviced by excellent transportation links. The property is situated within comfortable walking distance of a good selection of local amenities. A more comprehensive range of professional, recreational and retail services can be found in nearby historic Durham City. Early viewing is strongly recommended to fully appreciate the versatility and scope of the accommodation on offer.Living Room 3.28m x 4.30m Double glazed door to front, double glazed window to front, television point, radiator and staircase to first floor.
Dining Kitchen 4.20m x 4.31m Fitted wall and base units with coordinating work surfaces, single drainer sink unit, integrated electric oven, integrated gas hob, extractor hood, radiator and double glazed window to rear.
Utility Room 2.99m x 2.07m Fitted base units with coordinating work surfaces, sink unit, space for washing machine, radiator, double glazed windows to side and rear, double glazed door to side and wall mounted boiler.
First Floor Landing Access to roof space.
Master Bedroom 3.31m x 4.33m (max) Double glazed window to front and radiator.
Bedroom Two 3.60m x 2.31m Double glazed window to rear, fitted wardrobes and radiator.
Bathroom 2.56m x 1.88m Three piece suite comprising panelled bath with shower over, pedestal wash hand basin, low level WC, partially tiled walls, heated towel rail and double glazed window to rear.
Front Garden Artificial grassed area, decked patio, fenced boundaries and gated access.
Rear Yard Fenced and walled boundaries.
EPC Rating C
Council Tax Band A
Property Information
- Ref: DUR250247
- Type: Terraced House
- Availability: Sold (STC)
- Bedrooms: 2
- Bathrooms: 1
- Reception Rooms: 1
- Tenure: Freehold



























