Sold STC £339,950
Full Property Description
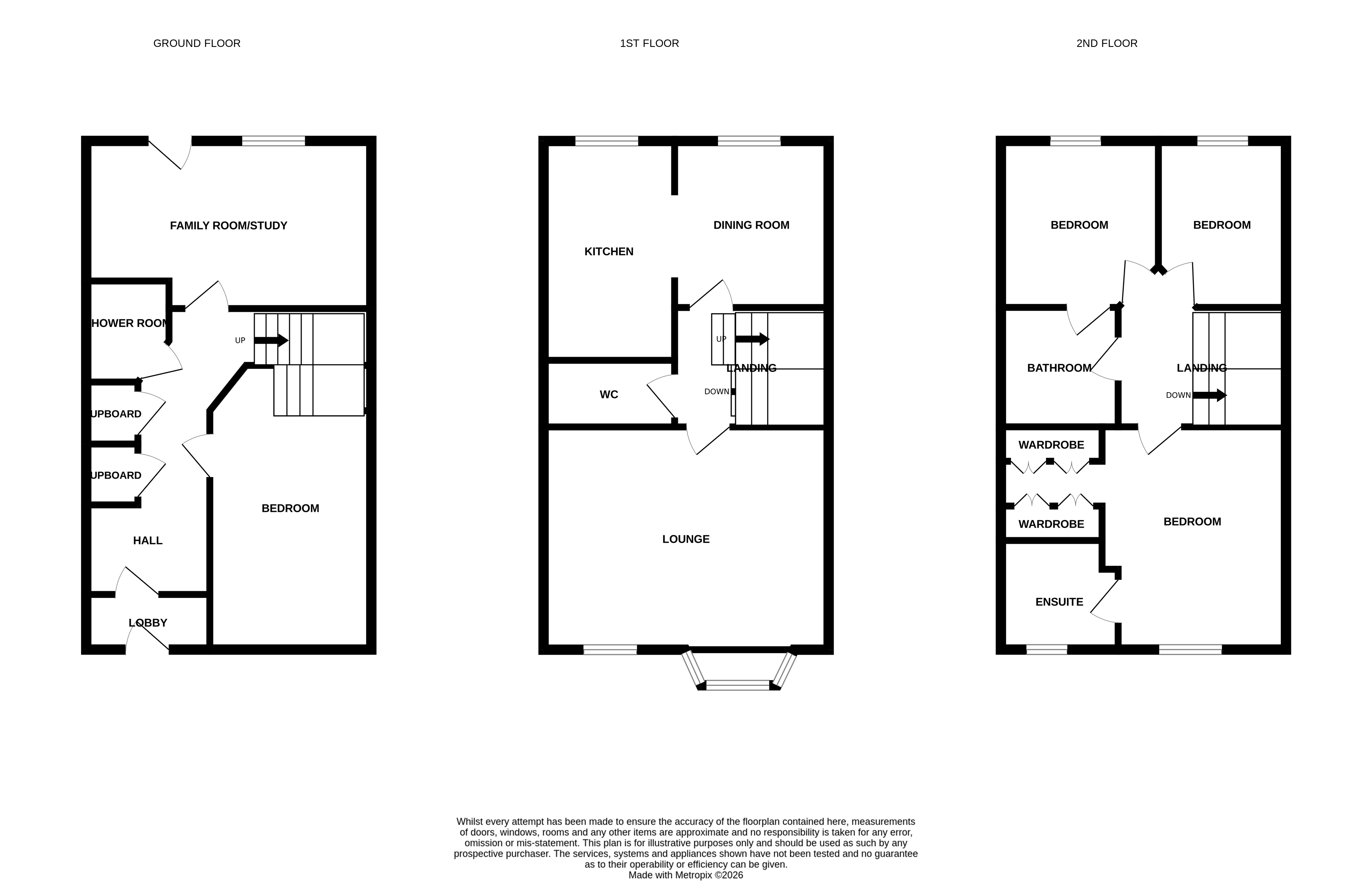
We have pleasure in offering for sale, an extremely well presented larger style Barratt built three storey end terraced Town House which has gas fired central heating and double glazing. Offering well proportioned, flexible and adaptable family sized accommodation, it briefly comprises to the ground floor: Entrance lobby, entrance hall with shower room. There are two rooms at this level which are a bedroom and a study/family room. On the first floor there is a landing with cloakroom/WC, lounge and extremely well fitted kitchen open to dining room. On the second floor the master bedroom has a walk in dressing area and an en-suite shower room and there are two further bedrooms and family bathroom with one of the bedrooms also having a 'Jack and Jill' arrangement with the bathroom. There is a single garage in a block adjacent to the property with additional parking for further vehicles, a small garden area to the front and an enclosed lawned garden area to the rear with patio. Sheraton Park is a prestigious development of houses situated in the well established and ever popular area of Nevilles Cross being adjacent to the A(167) Highway which provides good road links to both North and South. It is just over 1 mile from the immediate City Centre with its comprehensive shopping and recreational facilities and amenities and is within easy reach of the Durham Johnston School, St Leonards Roman Catholic School, St Margarets School, as well as Durham High School and Durham School.Entrance Lobby Entrance door to front and tiled floor.
Entrance Hallway Two storage cupboards, radiator and staircase to first floor.
Ground Floor Bedroom 4.95m x 2.82m Double glazed window to front and radiator.
Ground Floor Shower Room Three piece suite comprising step in shower cubicle, low level WC, wash hand basin in vanity unit, radiator, extractor fan and electric shaver point.
Family Room/Study 4.95m x 2.92m Double glazed window to rear, door to rear garden and radiator.
First Floor Landing Staircase to second floor.
Cloakroom/WC Low level WC, vanity hand basin with cupboard below, tiled splashbacks, radiator, extractor fan and electric shaver point.
Living Room 4.93m x 3.89m Two double glazed windows to front and radiator.
Dining Room 3.05m x 2.6m Double glazed window to rear and radiator.
Kitchen 3.8m x 2.29m Open to dining room and comprising fitted wall and base units with coordinating work surfaces, sink unit, integrated gas hob, integrated electric oven, extractor hood, space for washing machine, space for tumble dryer, space for fridge freezer, partially tiled walls, double glazed window to rear and kickboard heater.
Second Floor Landing
Master Bedroom 4.01m x 3.2m Double glazed window to front and radiator.
Dressing Area Walk in wardrobe.
En-Suite Shower Room White three piece suite comprising step in shower cubicle, wash hand basin in vanity unit, low level WC, electric shaver point, heated towel rail, extractor fan, partially tiled walls and double glazed window to front.
Bedroom Two 3.05m x 2.6m Double glazed window to rear, radiator and door to family bathroom.
Bedroom Three 3.05m x 2.24m Double glazed window to rear and radiator.
Bathroom White three piece suite comprising panelled bath with mixer shower attachment, wash hand basin with vanity cupboard below, low level WC, partially tiled walls, heated towel rail and extractor fan.
Front Garden Laid to lawn.
Rear Garden Laid to lawn with paved patio, fenced boundaries and gated access.
Garage Single brick built garage in a block adjacent to the property and there is additional parking for 3 to 4 further vehicles.
EPC Rating C
Council Tax Band F
Property Information
- Ref: DUR260003
- Type: End of Terrace House
- Availability: Sold (STC)
- Bedrooms: 4
- Bathrooms: 3
- Reception Rooms: 1
- Tenure: Freehold































