Asking Price £450,000
Full Property Description
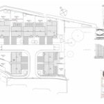
PLANNING APPLICATION APPROVED BY COMMITEE DECISION - PLEASE REFER TO DURHAM COUNTY COUNCIL PLANNING PORTAL FOR FULL DETAILS AND REGISTERED DOCUMENTATION. DM/19/02002/OUT IMAGES DISPLAYED ARE FOR ILLUSTRATIVE PURPOSES. Ben Charles are delighted to offer this residential development opportunity to the market. The land is to be sold with outline planning permission for nine units. Please refer to the Durham County Council planning portal for further detail. Ref DM/19/02002/OUT The proposed property type and site density have been carefully considered and tailored specifically to the development location. The site is located at the head of a cul de sac on Kensington Terrace, off Willington High Street: https://www.google.com/maps/place/Willington/@54.71302,-1.6976844,127a,35y,90h,45t/data=!3m1!1e3!4m5!3m4!1s0x487e81b80f2a0ef1:0xedad31af97501172!8m2!3d54.711429!4d-1.693737 https://www.google.com/maps/@54.7130201,-1.6957094,3a,75y,90h,90t/data=!3m6!1e1!3m4!1sFZjfEqFg5IIw-Gn8JqZvdA!2e0!7i13312!8i6656 https://www.google.com/maps/@54.7130201,-1.6957094,3a,75y,90t/data=!3m6!1e1!3m4!1sFZjfEqFg5IIw-Gn8JqZvdA!2e0!7i13312!8i6656 Site access and topography appear favourable in terms of development ease. To discuss further please contact Ben Charles Ltd.Disclaimer Disclaimer: Our details have been compiled in good faith using publicly available sources and information obtained from the vendor prior to marketing. Verification and clarification of this information, along with any further details concerning Material Information parts A, B & C, should be sought from a legal representative or appropriate authorities before making any financial commitments. Ben Charles Ltd cannot accept liability for any information provided subsequent amendments or unintentional errors or omissions.
Property Information
- Ref: DUR190167
- Type: Land, Property
- Availability: For Sale









