Sold STC £121,950
Full Property Description
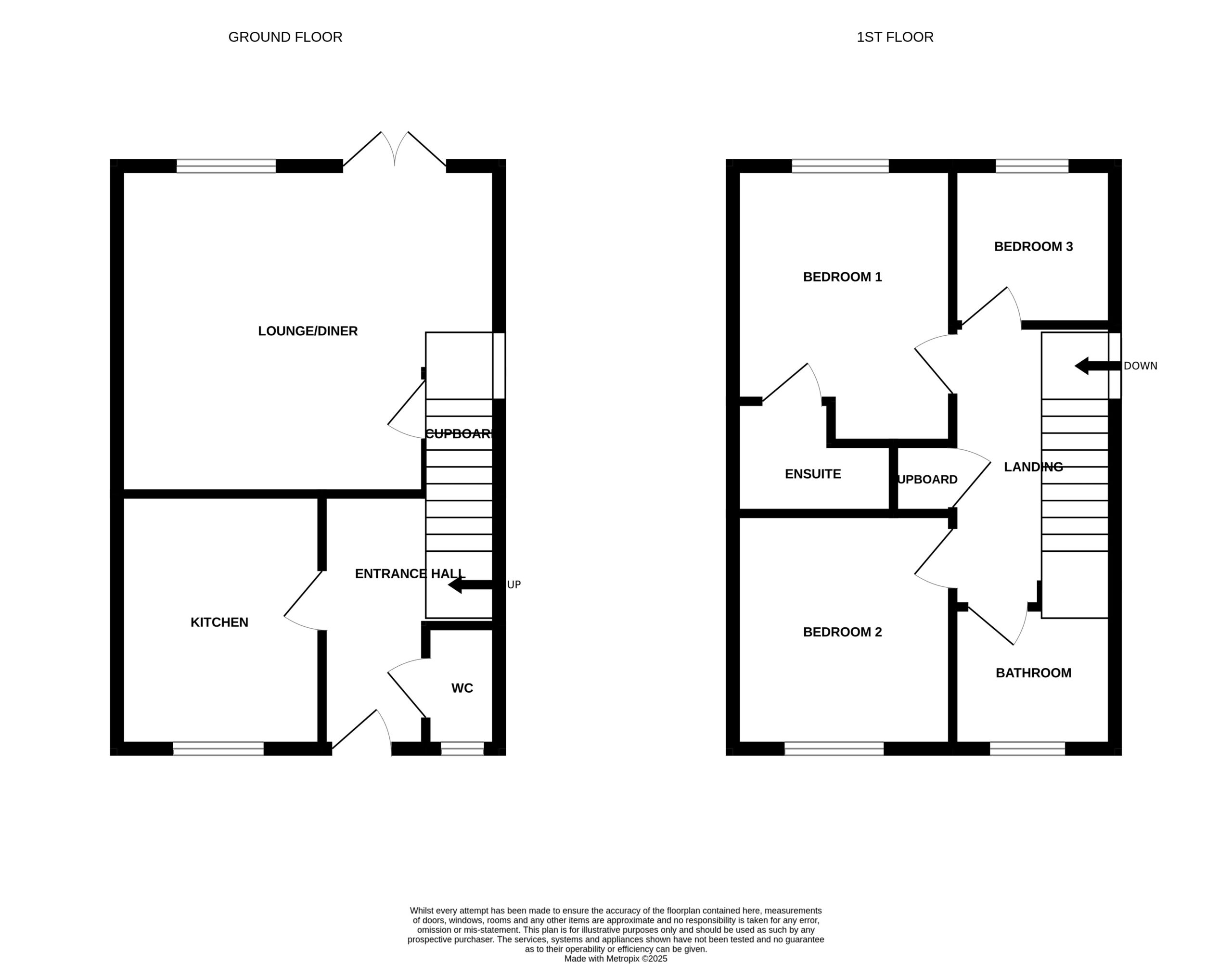
We are pleased to offer for sale this modern three bedroomed end terrace property benefitting from gas fired central heating and double glazing. Occupying a pleasant position, the chain free property has accommodation comprising on the ground floor: Entrance hallway with cloakroom/WC, lounge/dining room with French doors to the rear garden and kitchen/breakfast room. To the first floor there are three bedrooms, the master with an en-suite shower room, and a family bathroom. Externally there are gardens to the front and rear and allocated parking. There are a range of local shops and amenities available within Langley Park with a more comprehensive range of shopping and recreational facilities and amenities available within Durham City Centre which is approximately 6 miles away. Langley Park lies adjacent to the A(691) Highway which provides access to other regional centres.Entrance Hallway Double glazed entrance door, staircase to first floor and radiator.
Cloakroom/WC 2.09m x 0.96m Double glazed window to front, low level WC, wash hand basin and radiator.
Living/Dining Room 4.24m x 4.87m Double glazed window to rear, television point, storage cupboard and double glazed French doors leading to rear garden.
Breakfasting Kitchen 3.27m x 2.61m Fitted wall and base units with coordinating work surfaces, single drainer sink unit, integrated electric oven, integrated gas hob, extractor hood, space for washing machine, space for dishwasher, partially tiled walls, radiator and double glazed window to front.
First Floor Landing Double glazed window to side, storage cupboard and access to roof space.
Master Bedroom 3.68m x 2.79m Double glazed window to rear and radiator.
En-Suite Shower Room 1.56m x 1.35m White three piece suite comprising pedestal wash hand basin, step in shower cubicle, low level WC, extractor fan and radiator.
Bedroom Two 3.02m x 2.81m Double glazed window to front and radiator.
Bedroom Three 2.05m x 1.99m Double glazed window to side and radiator.
Bathroom 2.11m x 1.99m White three piece suite comprising panelled bath, pedestal wash hand basin, low level WC, partially tiled walls, double glazed window to front, extractor fan and radiator.
Front Garden Paved area and allocated parking space.
Rear Garden Mainly gravelled with paved and decked areas, fenced boundaries and gated access.
EPC Rating C
Council Tax Band B
Property Information
- Ref: DUR250143
- Type: End of Terrace House
- Availability: Sold (STC)
- Bedrooms: 3
- Bathrooms: 2
- Reception Rooms: 1
- Parking: Off Road Parking
- Tenure: Freehold

