Asking Price £129,950
Full Property Description
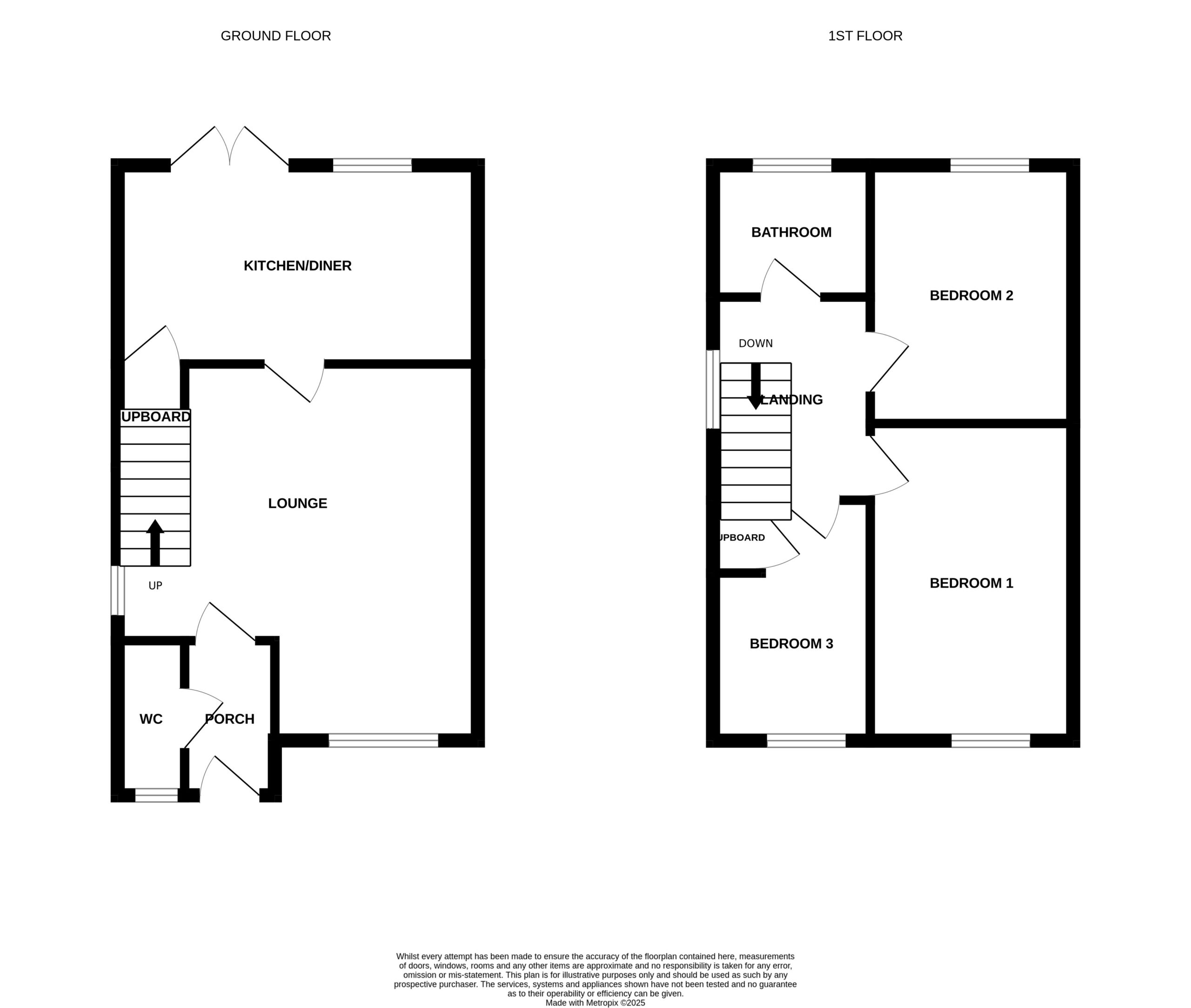
WELL PRESENTED. GREAT LOCATION. THREE BEDROOMS. GARAGE. GARDEN. Ben Charles are delighted to offer this well presented, three bedroom house to the market. The chain free accommodation briefly comprises to the ground floor: Entrance porch, cloakroom/WC, living room and thoughtfully planned kitchen/diner. To the first floor are three bedrooms and a family bathroom. Externally alongside maturing front and rear gardens, this spacious plot provides parking and access to a semi detached garage with additional driveway to front. Situated on the periphery of Stockton, this property is an ideal family home with excellent commuter links and amenities on the doorstep.Entrance Porch 1.18m x 1.74m Double glazed entrance door and radiator.
Cloakroom/WC 1.74m x 0.86m Double glazed window to front, low level WC, wash hand basin and radiator.
Living Room 4.59m x 4.78m Double glazed windows to front and side, television point, staircase to first floor and two radiators.
Kitchen/Dining Room 4.56m x 2.44m Fitted wall and base units with coordinating work surfaces, single drainer sink unit, integrated electric oven, integrated gas hob, extractor hood, space for washing machine, radiator, double glazed window to rear, storage cupboard and double glazed French doors leading to rear garden.
First Floor Landing Double glazed window to side and access to roof space.
Master Bedroom 4.06m x 2.60m Double glazed window to front and radiator.
Bedroom Two 3.27m x 2.57m Double glazed window to rear and radiator.
Bedroom Three 3.07m x 1.88m (max) Double glazed window to front, radiator and storage cupboard.
Bathroom 1.68m x 1.87m White three piece suite comprising panelled bath with shower over, pedestal wash hand basin, low level WC, partially tiled walls, double glazed window to rear, extractor fan and radiator.
Front Garden Laid to lawn.
Rear Garden Laid to lawn with outside tap, patio area, fenced boundaries and gated access.
Garage & Driveway Up and over door. Driveway to front providing further off street parking.
EPC Rating C
Council Tax Band B
Property Information
- Ref: DUR250226
- Type: Semi-Detached House
- Availability: For Sale
- Bedrooms: 3
- Bathrooms: 1
- Reception Rooms: 1



























