Sold STC £290,000
Full Property Description
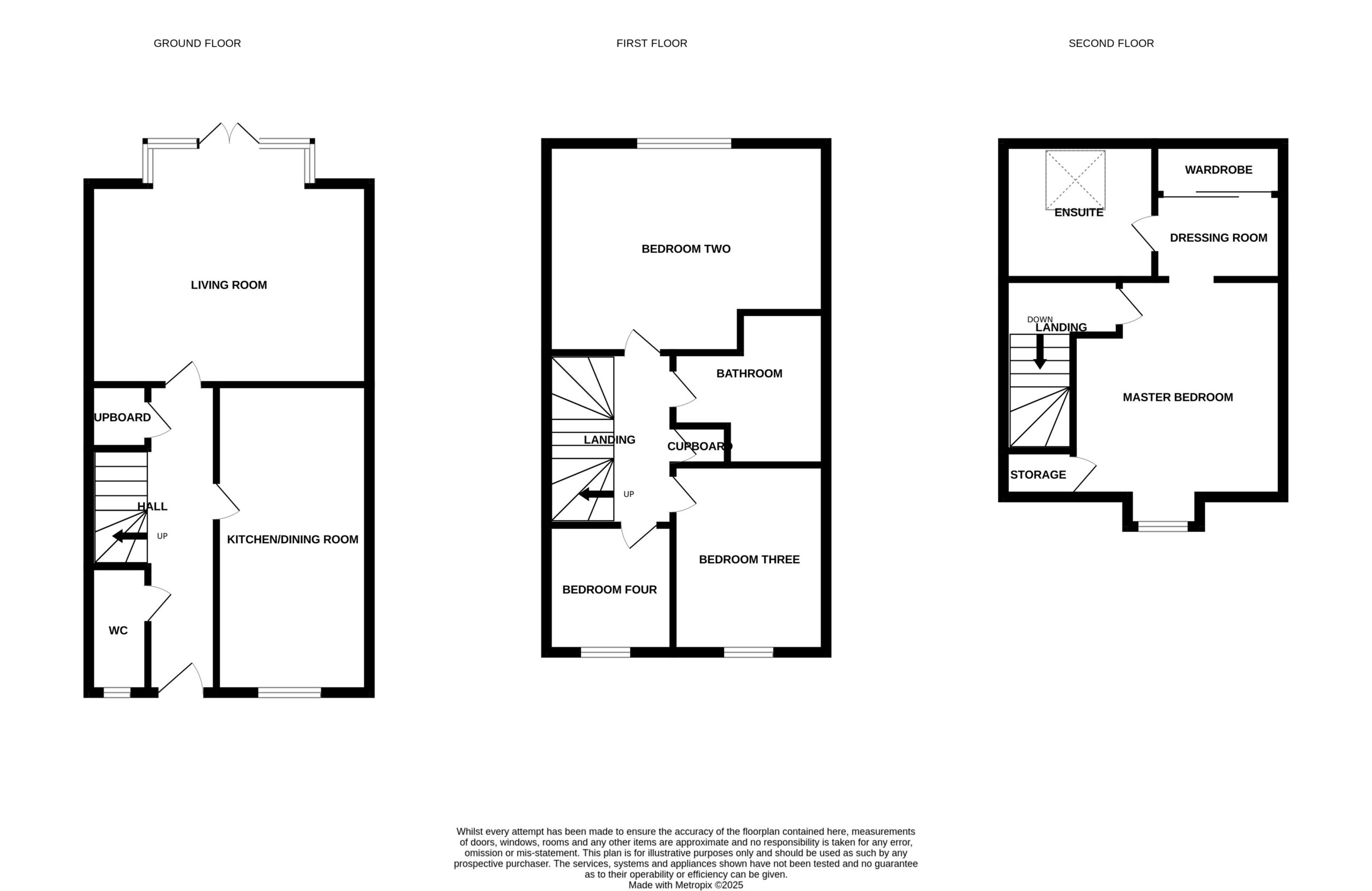
We have pleasure in offering for sale this spacious, modern four bedroomed three story end link property with gas fired central heating and double glazing. The property offers ideal family sized accommodation and offers a floorplan briefly comprising to the ground floor: Entrance hallway, cloakroom/WC, living room and dining kitchen. To the first floor are three bedrooms and a family bathroom. The second floor houses the master suite with dressing room and en-suite shower room. Externally the house has gardens to the front and rear and a single garage situated in a nearby block. Harvey Avenue is located within easy reach of local neighbourhood shops, schools etc, which are available within Framwellgate Moor, as well as Newton Hall and the Arnison Retail Park. Framwellgate Moor is situated within 3 miles of Durham City Centre where there are comprehensive shopping and recreational facilities and amenities available. It is within a few minutes’ drive of the A(167) Highway which provides good road links to both North and South.Entrance Hallway Double glazed entrance door, storage cupboard, staircase to first floor and radiator.
Cloakroom/WC 2.09m x 0.90m Double glazed window to front, low level WC, wash hand basin, extractor fan and partially tiled walls.
Living Room 4.73m x 4.75m (max) Double glazed windows to side and rear, television point, radiator and double glazed French doors to rear garden.
Dining Kitchen 5.16m x 2.57m Fitted wall and base units with coordinating work surfaces, sink unit, integrated electric double oven, integrated electric hob, extractor hood, integrated dishwasher, integrated washing machine, integrated fridge freezer, wall mounted combi boiler, radiator and double glazed window to front.
Landing Storage cupboard and staircase to second floor.
Bedroom Two 3.72m x 4.73m (max) Double glazed window to rear, fitted wardrobes and radiator.
Bedroom Three 3.15m x 2.49m Double glazed window to front and radiator.
Bedroom Four 2.11m x 2.12m Double glazed window to front and radiator.
Bathroom 3.08m x 2.46m (max) White four piece suite comprising panelled bath, pedestal wash hand basin, step in shower cubicle, low level WC, partially tiled walls, extractor fan and radiator.
Second Floor Landing
Master Bedroom 4.45m x 3.51m (max) Double glazed window to front, storage cupboard, radiator and access to dressing room.
Dressing Room 1.06m x 2.28m Access to loft and fitted wardrobes.
En-Suite Shower Room 2.34m x 2.30m White three piece suite comprising pedestal wash hand basin, step in shower cubicle, low level WC, partially tiled walls, radiator and Velux window to rear.
Front Garden Gravelled with hedged boundaries.
Rear Garden Mainly paved with fenced boundaries and gated access.
Garage Up and over door with driveway to front providing additional off street parking.
EPC Rating C
Council Tax Band D
Property Information
- Ref: DUR250272
- Type: End of Terrace House
- Availability: Sold (STC)
- Bedrooms: 4
- Bathrooms: 2
- Reception Rooms: 1
- Tenure: Freehold































