Asking Price £169,950
Full Property Description
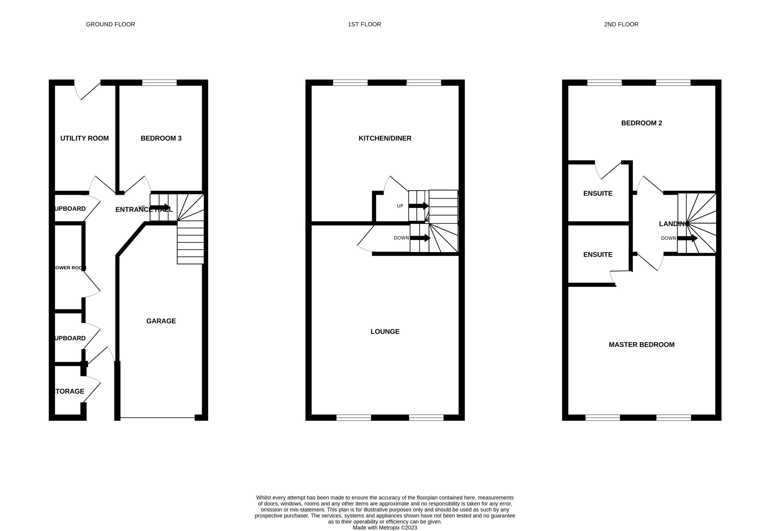
THREE BEDROOMS. THREE BATH/SHOWER ROOMS. GREAT LOCATION. Ben Charles are delighted to offer this three bedroom, semi detached house to the market. The chain free accommodation briefly comprises: On the ground floor; Entrance hallway, utility room, shower room and bedroom. To the first floor; living room and dining kitchen. To the second floor are two further bedrooms both with en-suite facilities. Externally there are gardens to front and rear, off street parking provision and a single garage. George Stephenson Boulevard is conveniently located within comfortable walking distance of a wide selection of retail, professional and recreational amenities. The area is serviced by excellent transportation links and additionally benefits from inclusion within the catchment area of a number of well regarded schools. Viewing essential.Entrance Hallway Double glazed entrance door, staircase to first floor, two storage cupboards and radiator.
Ground Floor Shower Room 2.80m x 0.85m Double shower cubicle, low level WC, wash hand basin and radiator.
Bedroom Three 2.60m x 2.60m Double glazed window to rear and radiator.
Utility Room 2.90m x 2.67m Fitted wall and base units with coordinating work surfaces, sink unit, space for washing machine, radiator and double glazed door to rear.
First Floor Landing Staircase to second floor.
Living Room 4.41m x 4.23m Two double glazed windows to front, television point and two radiators.
Dining Kitchen 4.41m x 2.66m Fitted wall and base units with coordinating work surfaces, sink unit, integrated electric oven, integrated gas hob, extractor hood, integrated dishwasher, radiator and two double glazed windows to rear.
Second Floor Landing
Master Bedroom 3.86m x 3.68m Two double glazed windows to front and radiator.
En-Suite Shower Room 1.98m x 1.68m White three piece suite comprising step in shower cubicle, pedestal wash hand basin, low level WC, extractor fan and radiator.
Bedroom Two 3.85m x 2.89m Two double glazed windows to rear and radiator.
Second Bedroom En-Suite Shower Room 1.78m x 1.50m White three piece suite comprising pedestal wash hand basin, step in shower cubicle, low level WC, extractor fan and radiator.
Front Garden Lawned area and driveway providing off street parking.
Rear Garden Laid to lawn with planted borders, patio area, fenced boundaries and gated access.
Garage Light and power points, up and over door.
EPC Rating C
Council Tax Band C
Property Information
- Ref: DUR230150
- Type: Semi-Detached House
- Availability: For Sale
- Bedrooms: 3
- Bathrooms: 3
- Reception Rooms: 1
- Tenure: Freehold























