Sold STC £210,000
Full Property Description
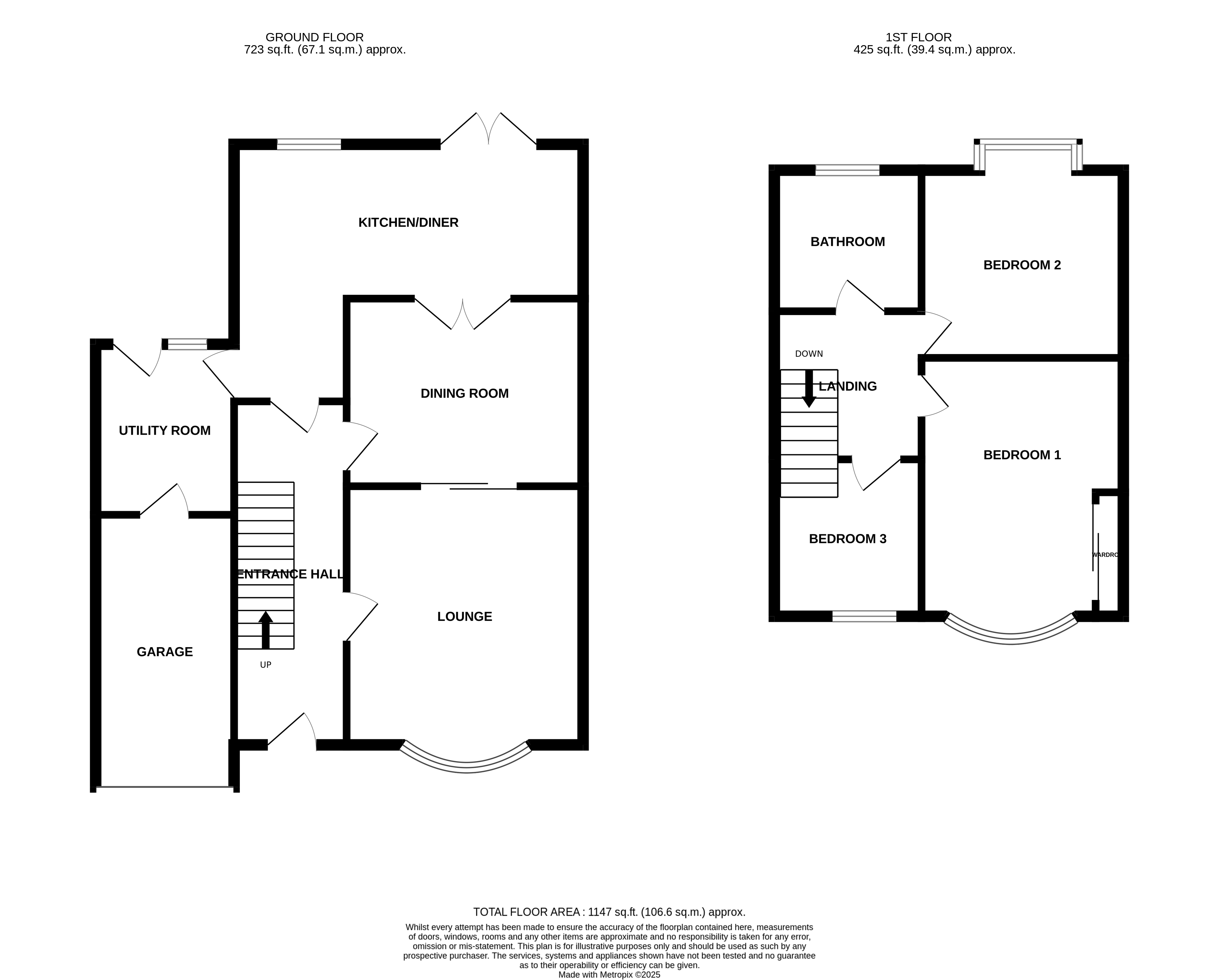
Ben Charles are delighted to offer this beautifully presented, three bedroom house to the market. The chain free accommodation briefly comprises: Entrance hallway, living room, dining room, dining kitchen and utility room. To the first floor are three well proportioned bedrooms and a family bathroom. Externally there are gardens to front and rear, multi vehicle parking provision and a garage. Moor Crescent is conveniently located within comfortable walking distance of a wide selection of local amenities. A more comprehensive range of professional, retail and recreational services can be easily accessed in nearby Durham City. The area is serviced by well regarded local schooling and benefits from excellent transportation links. The property has been modernised and maintained to a high standard. Early viewing is recommended.Entrance Hallway Door to front, radiator and staircase to first floor.
Living Room 4.08m x 3.70m Double glazed Bay window to front, feature fireplace and radiator.
Dining Room 3.70m x 2.94m Fitted storage and shelving, fireplace with gas fire and radiator.
Dining Kitchen 5.42m x 2.31m Fitted wall and base units with coordinating work surfaces, sink unit, integrated fridge freezer, integrated electric hob, electric oven, extractor hood, breakfast bar, partially tiled walls, under stairs cupboard, double glazed window to rear, radiator and double glazed French doors leading to rear garden.
Utility Room Fitted work surfaces with space for washing machine, door to rear garden, window to rear and door to garage.
Master Bedroom 4.16m x 2.95m Double glazed Bay window to front, fitted wardrobes and radiator.
Bedroom Two 3.98m x 3.28m Double glazed Bay window to rear and radiator.
Bedroom Three 2.35m x 2.27m Double glazed window to front and radiator.
Bathroom White three piece suite comprising panelled bath with shower over, pedestal wash hand basin, low level WC, storage cupboard, partially tiled walls, double glazed windows to rear and side.
Front Garden Mainly planted with walled and fenced boundaries. Further benefitting from block paved driveway giving access to single garage.
Rear Garden Laid to lawn with planted borders, patio area and fenced boundaries.
Garage Door to front, light and power points and door to utility room.
EPC Rating D
Council Tax Band C
Property Information
- Ref: DUR250264
- Type: Semi-Detached House
- Availability: Sold (STC)
- Bedrooms: 3
- Bathrooms: 1
- Reception Rooms: 2
- Tenure: Freehold























